Sorry, you need to enable JavaScript to visit this website.

HFD working on $1 million station expansion

December 12, 2021 - 00:00
Posted in:
HFD working on $1 million station expansionHFD working on $1 million station expansion

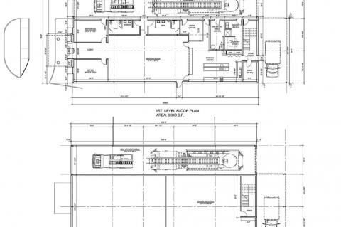
County sales tax funds squirreled away by Hennessey’s Fire Department for a “big project” will be used to expand the fire station.The estimated $1-million project will make room for a ladder truck, include a decontamination shower for volunteer firefighters, and a helicopter pad east of the station to transfer emergency ...

PLEASE LOG IN FOR PREMIUM CONTENT. Our website requires visitors to log in to view the best local news. Not yet a subscriber? Subscribe today!